















This listing is off-market
163 Newbury St
Back Bay, Boston, 02116lg...
●Apartment for rentlg...
Beds
3lg...Baths
2lg...Published
30 days agolg...$6,900 / month
Description
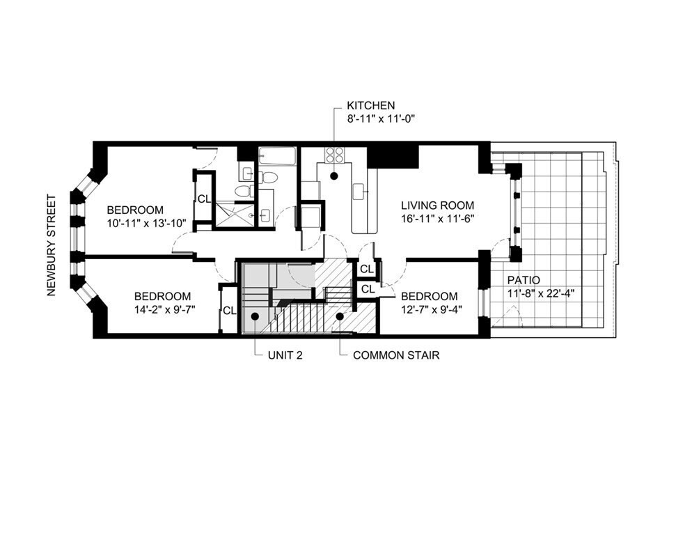
Second-floor luxury apartment features 3 Bedrooms, 2 Bathrooms with a Private Patio. Listed at over 1250sqft, including a private patio, the apartment features eye-catching 12’ ceilings throughout. The 8’ high solid wood doors, also seen throughout the apa...
See MoreBuilding Info
Building TypeBrownstone
Unit Level2
Heat SourceOther
Square Feet1250
Moving Costs
Security Deposit$6900
First Month Rent$6900
Last Month Rent$6900
Key Deposit$100
Broker FeeNone
Rental & Pet Policies
Pet PolicyCats Allowed, Small Dogs Allowed, Big Dogs Allowed
Student PolicyNo Students
Parking Info
ParkingOn Site
Number Of Spots1
Cost Per MonthN/A
Included Utilities & Amenities
A/C
Central Air
Dishwasher
Disposal
Parking
Hardwood Floors
Renovated Appliances