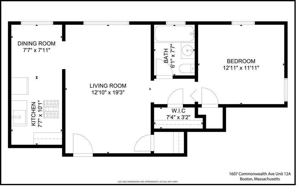
This beautifully renovated apartment features two spacious bedrooms, a sleek and modern bathroom, and gleaming hardwood floors throughout. The open-concept living area is bathed in natural sunlight, creating a warm and inviting space perfect for relaxing o...
See More