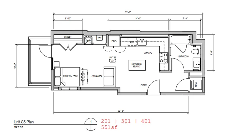
Spacious studio with floor to ceiling window and large private balcony. Stunning new construction in Coolidge Corner! Inside 54 Auburn you'll find espresso colored flooring complemented by white & gray accents among the tiles and walls. Matte black finishe...