This listing is off-market
5 Yankee Way
Dartmouth, 02747lg...
●Apartment for rentlg...
Beds
2lg...Baths
1lg...Published
30 days agolg...$2,300 / month
Description
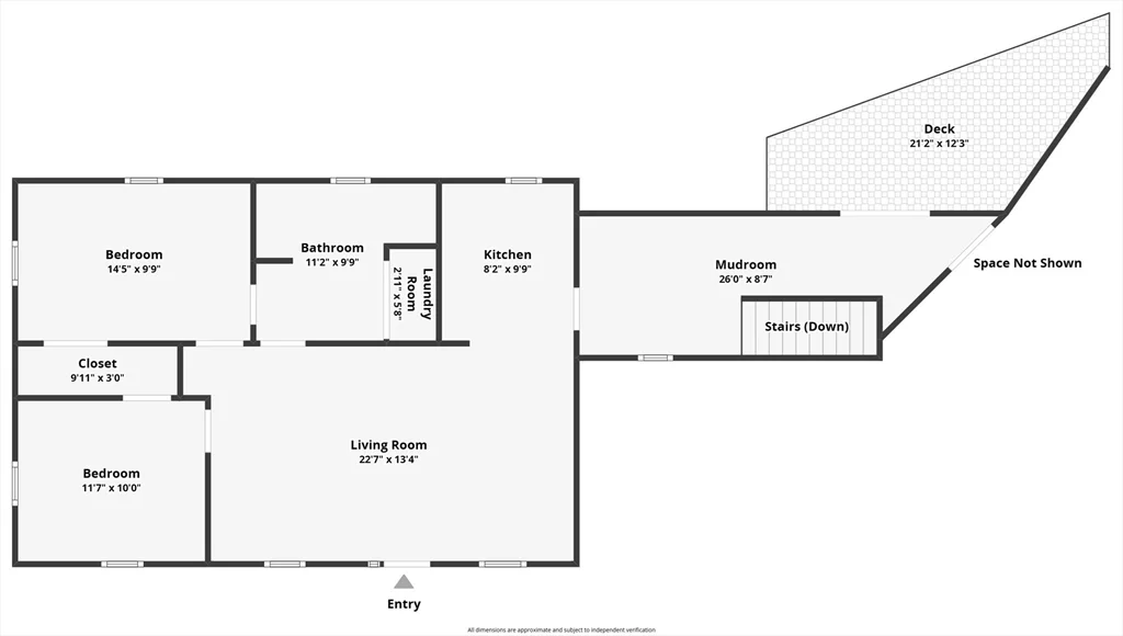
Bright, one-level living awaits at 5 Yankee Way, Unit 2, in Dartmouth. This spacious one-level first floor rental features hardwood floors, a private deck, and a practical layout with two bedrooms and a bathroom that includes a standing shower and separat...
See MoreBuilding Info
Building TypeApartment
Parking Info
ParkingNone
Number Of SpotsN/A
Cost Per MonthN/A
Included Utilities & Amenities
Dishwasher
Water