we do not accept any out-of-state cosigners.
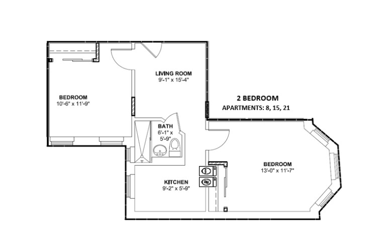
77 Park Dr., #1, Boston (Fenway)
Fully renovated in 2021 and redesigned with fine contemporary finishes and new features, 77 Park Drive is a 27-apartment home that boasts a high-end experience for residents loo...
See More