









This listing is off-market
27 Princeton St
Medford, 02155lg...
●Apartment for rentlg...
Beds
3.5lg...Baths
1lg...Published
30 days agolg...$3,600 / month
Description
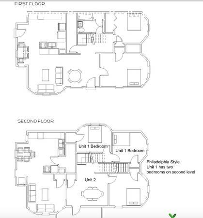
Large second & third floor 3 bed/1 bath plus study duplex apartment close to the Tufts university. Huge 1900 sf duplex with living room dining area, sun room, eat in kitchen and a big study on second level. Three very large bedrooms and one bath on third l...
See MoreBuilding Info
Building TypeApartment
Unit Level2
Heat SourceGas
Square Feet1900
Moving Costs
Security Deposit$3600
First Month Rent$3600
Last Month Rent$3600
Broker Fee1 Month
Rental & Pet Policies
Pet PolicyCats Allowed
Student PolicyStudents Allowed
Parking Info
ParkingOn Site
Number Of Spots1
Cost Per MonthN/A
Included Utilities & Amenities
Hardwood Floors