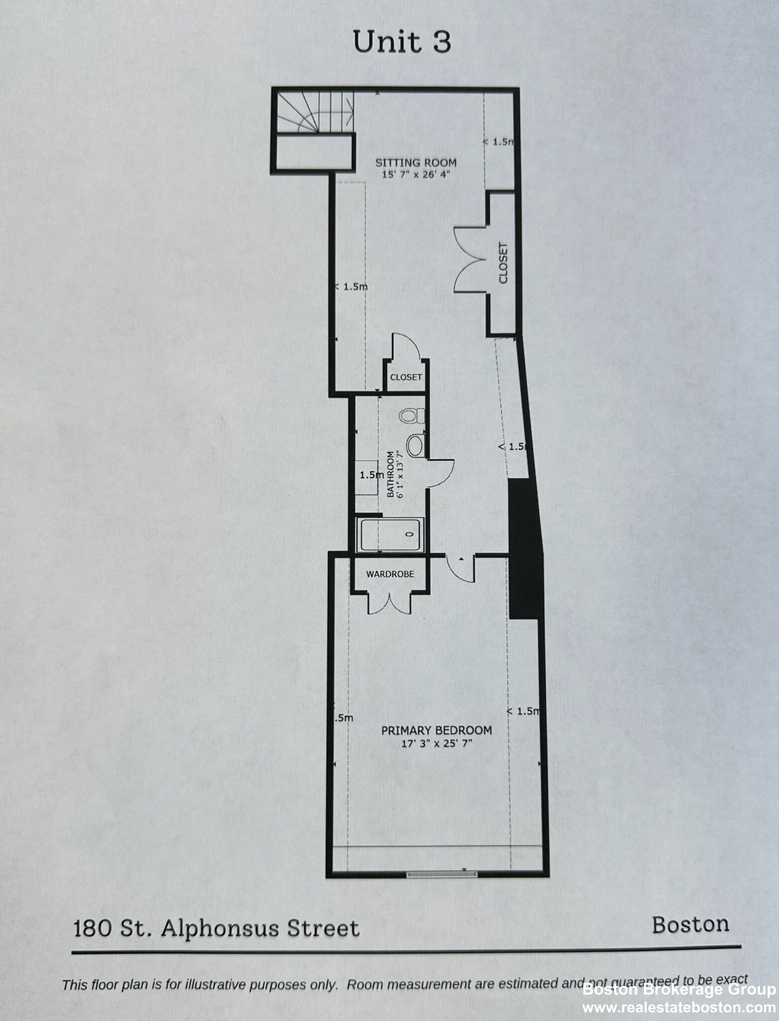
Large 6-bedroom, 2-bath apartment located in the Mission Hill neighborhood. This unit offers generously sized bedrooms, a functional shared living area, and two full bathrooms, providing a practical and comfortable layout for anyone.
The apartment feature...
See More