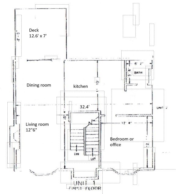
Newly painted modern, sunny, and spacious townhouse with nearly 2,000 sq. ft. of living area, including a first-floor family/playroom, 4 large bedrooms, 2.5 baths, and a master suite featuring a bath tub and walk-in closet. The updated kitchen has newer ap...
See More