This listing is off-market
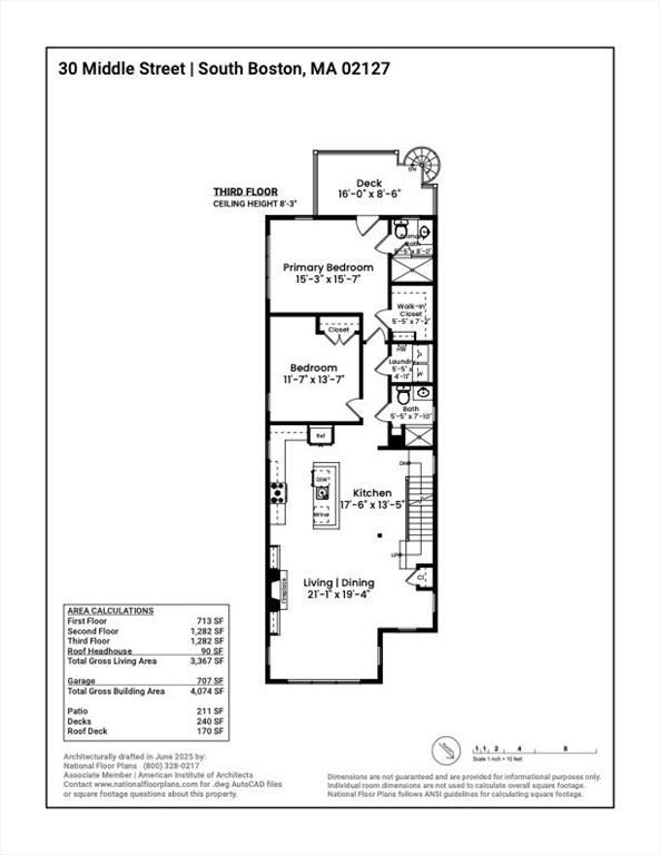
30 Middle St
South Boston, Boston, 02127lg...
●Apartment for rentlg...
Beds
2lg...Baths
2lg...Published
30 days agolg...$4,500 / month
Description
Two level home in South Boston with 2 Garage Parking, Private Balcony, Roof Deck and updated finishes available September 1, 2025. An oversized floor plan offering 1400SF with open living/dining area features gas fireplace, hardwood floors, recessed lighti...
See MoreBuilding Info
Building TypeCondo
Heat SourceGas
Parking Info
ParkingNone
Number Of SpotsN/A
Cost Per MonthN/A
Included Utilities & Amenities
Dishwasher
Disposal
Water