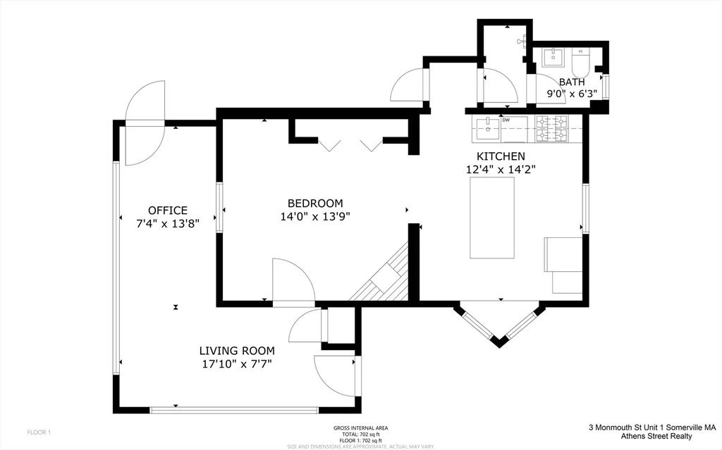
Spacious and well-maintained Unit 2 at 3 Monmouth St in Somerville offers comfortable living in a convenient location. This unit features a bright and functional layout with generously sized bedrooms, a welcoming living area, and a well-equipped kitchen wi...