This listing is off-market
25 Westfield Rd
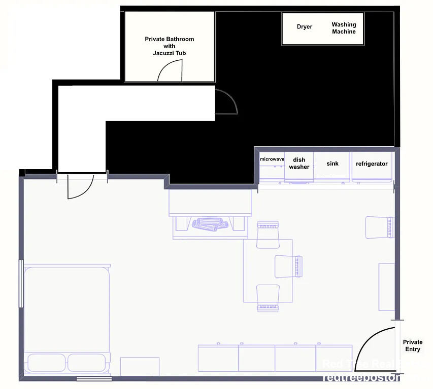
West Newton, Newton, 02465lg...
●Apartment for rentlg...
Beds
Studiolg...Baths
1lg...Published
30 days agolg...$2,400 / month
Description
Cozy yet openly spacious in-law suite in West Newton. This unit comes fully-furnushed, includes ALL utilities, free laundry & more. Fully-applianced kitchen with a working fireplace. AC also included. The bathroom also boasts a jacuzzi tub. Conveniently lo...
See MoreBuilding Info
Building TypeMulti-Family
Unit LevelGarden
Heat SourceGas
Square Feet420
Moving Costs
Security Deposit$2400
First Month Rent$2400
Last Month Rent$2400
Broker Fee1 Month
Rental & Pet Policies
Pet PolicyNo Pets Allowed
Student PolicyStudents Allowed
Parking Info
ParkingOn Site
Number Of Spots1
Cost Per MonthN/A
Included Utilities & Amenities
Central Air
Dishwasher
Disposal
Hardwood Floors
Hot Water
Heat
Gas
Electricity