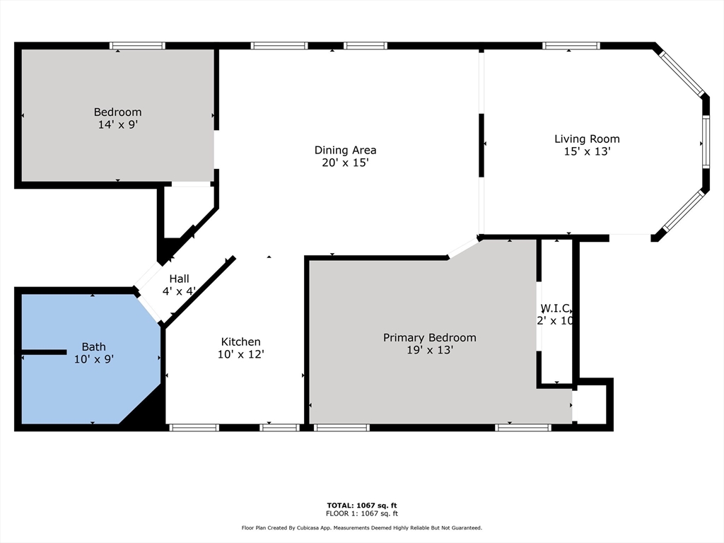
Welcome to 109 Davis St, New Bedford—a spacious and updated 2-bedroom, 1-bath rental offering 1,300 sq ft of comfortable living. This well-maintained unit features a fresh, modern vibe with stylish finishes throughout, including updated flooring, contempor...
See More